verfügbar
Informationen
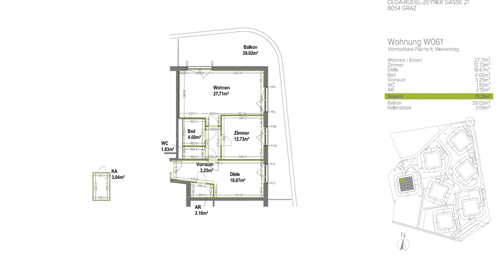
Typ
Mietwohnung
Fläche
70,29 qm
Zimmer
2
Balkon / Terrasse
JA
Garten
NEIN
Geschoss
6.OG
Kontaktdaten
Südsteirerimmobilien
+43 3452 75172
Beschreibung
Diese gut geschnittene 2-Zimmer-Wohnung verfügt über einen Vorraum und eine Diele, die zu einem praktischen Abstellraum führt. Von der Diele aus gelangt man in einen Gang, der Zugang zu den weiteren Räumen bietet. Hier befinden sich ein modernes Badezimmer und ein separates WC. Ein geräumiges Schlafzimmer bietet ausreichend Platz für Ruhe und Erholung. Der Wohn- und Essbereich ist großzügig gestaltet und schafft eine einladende Atmosphäre für gesellige Stunden und entspannte Momente. Ein besonderes Highlight der Wohnung ist der Zugang zu einem Balkon, der sowohl vom Schlafzimmer als auch vom Wohnzimmer sowie der Diele aus begehbar ist. Dieser bietet zusätzlichen Freiraum im Freien und eignet sich ideal für entspannte Stunden. Die Wohnung überzeugt durch ihre klare Raumaufteilung und bietet funktionalen Wohnraum in einer ruhigen Lage.
Standort
Olga-Rudel-Zeynek-Gasse 21; 8054 Graz Österreich























